Blue Stone Home Plans

Changing the world, one home at a time…

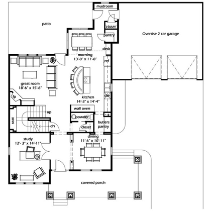
This 2,475 sf two story home is designed for easy family living and for entertaining. Guests are greeted by a large wrap around front porch, opening onto the dining room and private study. A large great room kitchen and morning room is where the family will hang out.

The second floor has a private master retreat with a large 5 piece bath. Separated from the master bedroom are two additional bedrooms and a shared study loft.
IMPORTANT INFORMATION

Please note that in most areas of the country, these house plans will be everything you need to build, but not necessarily everything you need to obtain a building permit.

ADDITIONAL ITEMS THAT MAY BE NEEDED

A site plan that shows where the house is going to be located on the property
A site specific soils test
Foundation and Structural Design specific to your lot and jurisdictional requirements
Septic or other utility design.
Energy Code Compliance certification.

First Floor Plan
1,366 square feet

Second Floor Plan
1,109 square feet

blocks_image
blocks_image
blocks_image

Pricing

Downloadable PDF set
Coming Soon!

Custom Changes
Contact Us

The images and plans found on these pages are the exclusive intellectual property of Blue Stone Design Group, LLC. They are intended for personal use only and should not be reproduced or distributed. To obtain multiple licenses please contact us.

Please allow 4-6 weeks to process your order.








blocks_image